Haus H. junior Meißen

2016 Haus H. junior, Meißen, Neubau

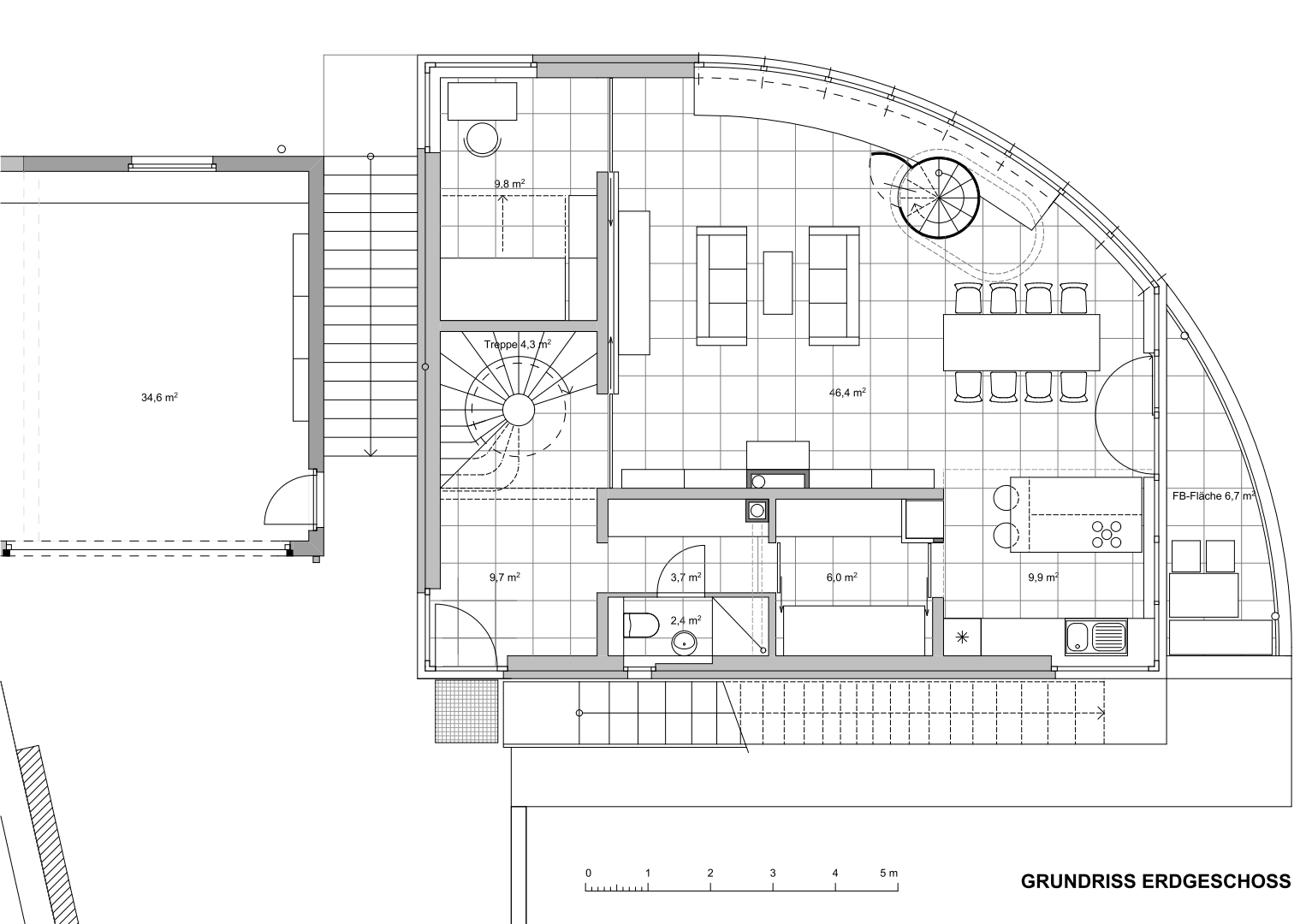
Dieses Haus lebt neben der spektakulären Lage von seinen außergewöhnlichen Treppen. So konnte bei diesem Projekt die zweite Sinustreppe durch Baarß + Löschner realisiert werden, die Montage erfolgte am 23. Juni 2016.

Zusätzlich führt eine 1-m²-Treppe in einer Stahlröhre aufs Dach, quasi als Geheimgang. Die Wendeltreppe hat keine Spindel und ist somit bequem zu begehen bei geringstem Platzbedarf. Die Stahlröhre dient gleichzeitig als Unterstützung der Decke und Dachterrasse. Im Kontrast dazu führt eine großzügige offene, durch Oberlicht erhellte Wendeltreppe nach unten zu den Kinderzimmern sowie Bad und Schlafraum.

Blick auf die Hangseite mit gekrümmtem Panoramafenster zur Altstadt Meißen Blick auf die Hangseite mit gekrümmtem Panoramafenster zur Altstadt Meißen Dachterrasse Dachterrasse Blick von Südosten Foto: Marina Jach Blick von Südosten Durchblick über den Küchenbalkon zum Meißner Dom Durchblick über den Küchenbalkon zum Meißner Dom Straßenseite mit Sinustreppe aus Cortenstahl mit Lochblechstufen Straßenseite mit Sinustreppe aus Cortenstahl mit Lochblechstufen 80 Besucher in zwei Stunden zum Tag der Architektur 2017 Foto: Marina Jach 80 Besucher in zwei Stunden zum Tag der Architektur 2017 1m²-»Geheim«-Treppe vom Wohzimmer zur Dachterrasse Foto: Marina Jach 1m²-»Geheimtreppe« vom Wohzimmer zur Dachterrasse Blick von der Dachterrasse auf die Altstadt Blick auf die Altstadt Grundriss des Untergeschosses Grundriss des Erdgeschosses Grundriss der Dachterrasse Südostecke Südostecke Hangseite mit Panoramafenster Hangseite mit Panoramafenster Wohnraum im Erdgeschoss mit Panoramafenster und 1-m²-Treppe in einer Stahlröhre Wohnraum im Erdgeschoss mit Panoramafenster und 1m²-Treppe in einer Stahlröhre